Construction de maisons modulaires aux Canaries

à partir de 29 900 €

Construisez votre maison modulaire à Ténérife ?

En partenariat avec Canarias Modular, nous fabriquons un logement modulaire en structure métallique entièrement personnalisé et adapté à votre besoin.

Nous vous conseillons et vous accompagnons tout au long du processus de construction de votre maison modulaire : de la recherche du terrain à la remise des clés, en passant par les conseils techniques et la livraison.

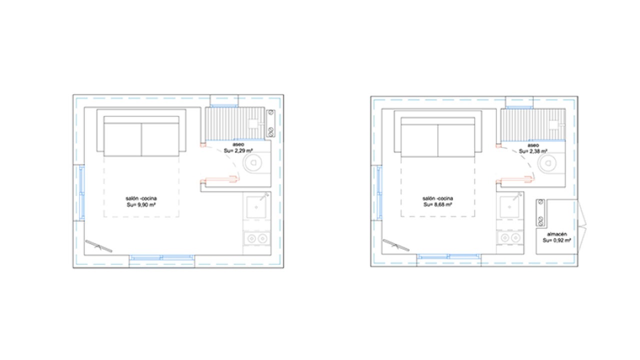
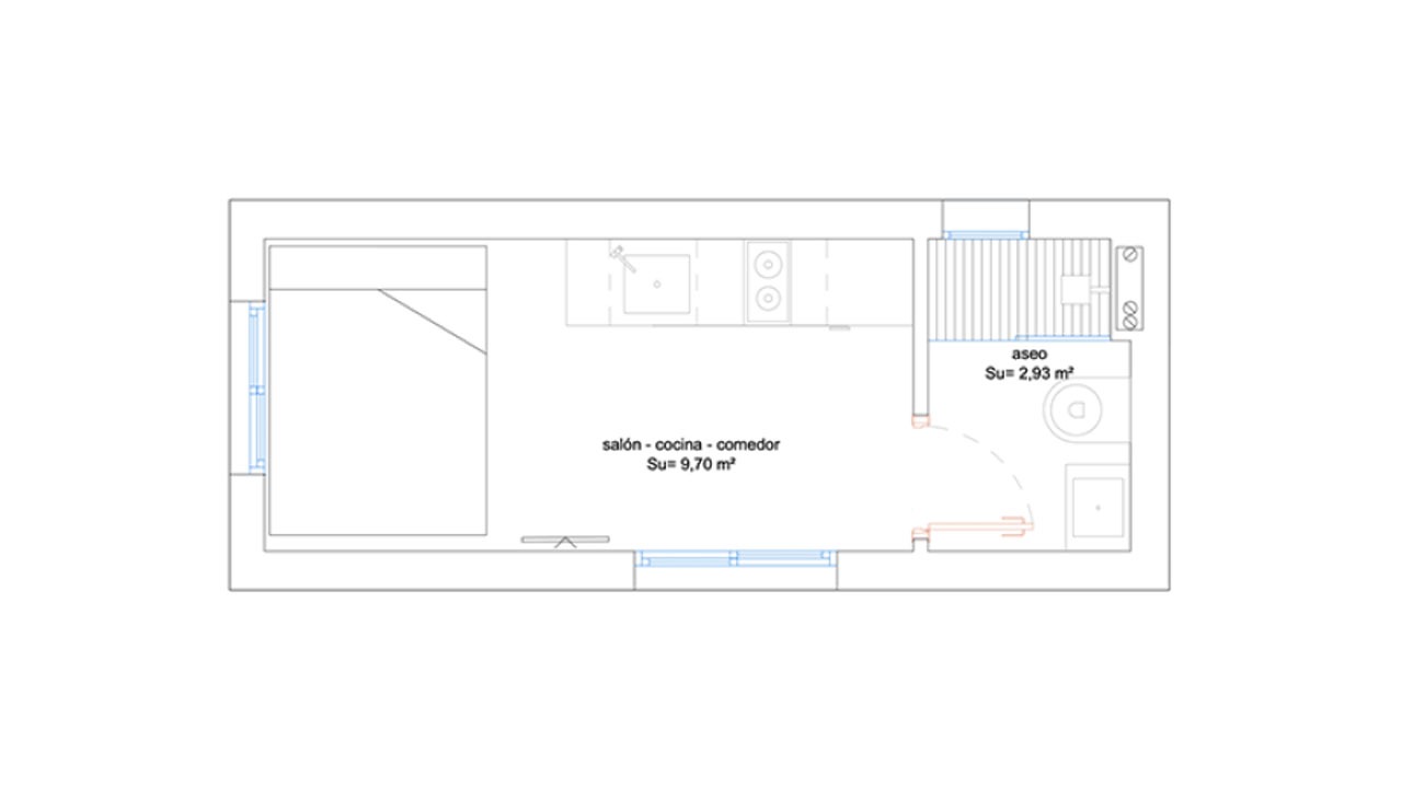
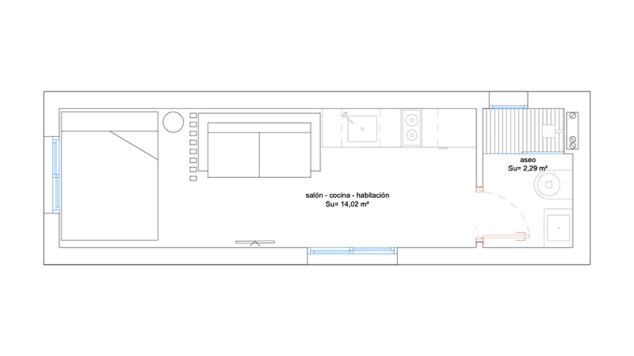
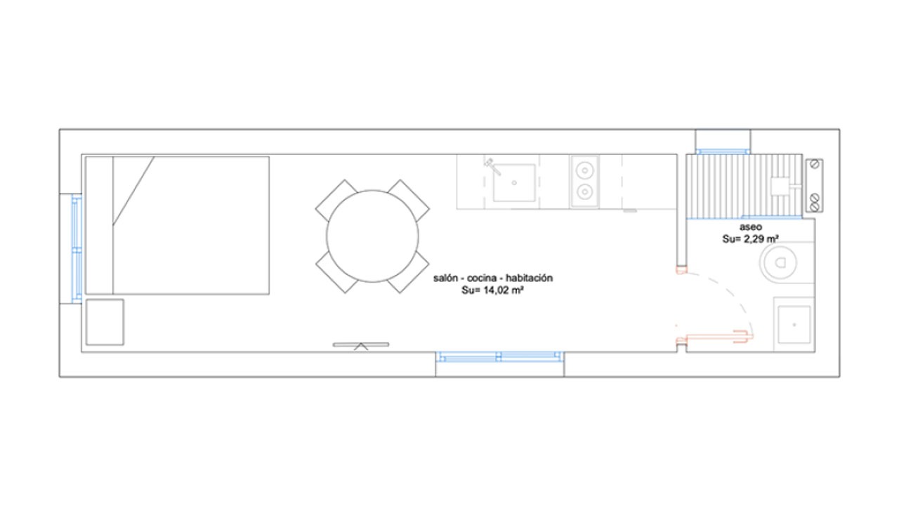
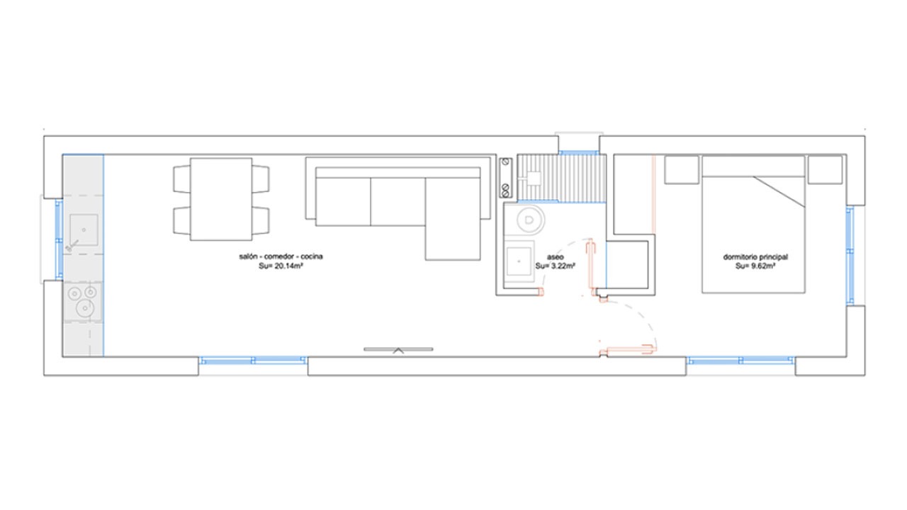
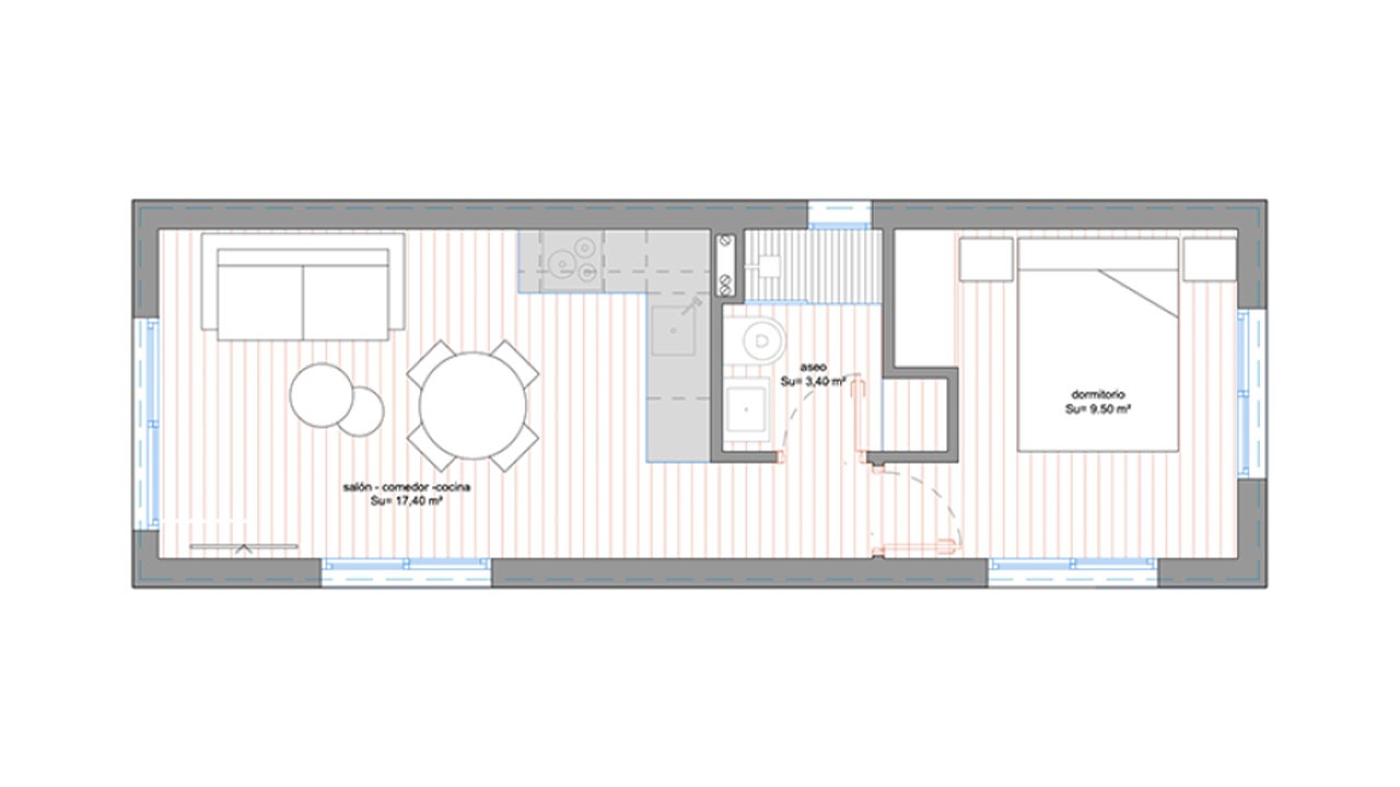
Nous vous proposons 5 modèles de modules (de 16 à 42 m²) personnalisables selon vos envies.

Combinez les modules à votre gré et concevez votre "volume de vie"

Découvrez nos maisons modulaires

Construction de maison modulaire aux Canaries

Les avantages de la construction modulaire


Conception flexible

Construction rapide

Installation facile

Réduction des coûts

Efficacité énergétique

Haute durabilité

Finitions de qualité

Moins de déchets

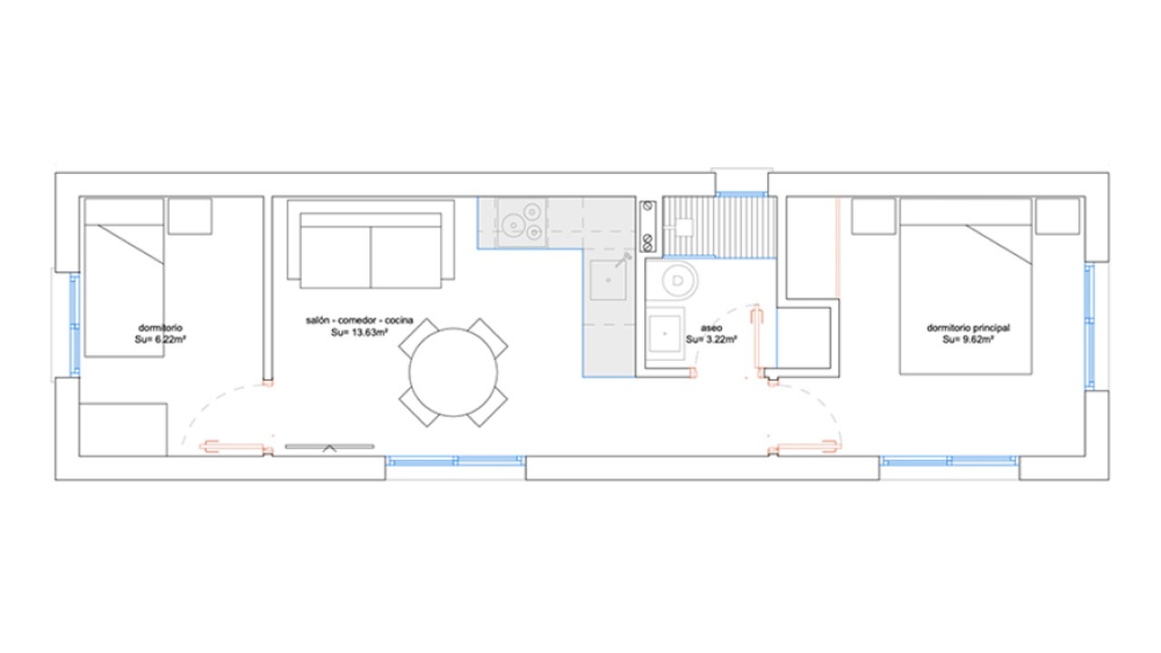
Nos différents modules de maisons

Nos modules individuels

Nos modules composés


Le prix indiqué n'inclut pas les frais du permis de construire : Il faut ajouter + 4% du montant du module


Les étapes de votre projet de maison modulaire


Visite de votre terrain constructif
(Urbano para construir, solare)

Élaboration et estimation de votre projet
(Prix des modules et des fondations)

Finalisation du projet final
(Validation et lancement en fabrication)

Demande de permis de construire
(Gestion administrative du dossier)


Exemple de tarif pour un module de 60 m²

Prix des modules 103 000 €
Frais du permis de construire (4% du montant des modules) 4 120 €
Estimation des fondations sur un sol plat 10 000 €
Montant total du projet 117 120 €

Hors frais de raccordements en eau et électricité et du tout à l'égout (suivant votre terrain)

Découvrez les étapes de fabrication de votre module

 

Concept de la construction modulaire en structure métallique

La construction modulaire à ossature en structure métallique est un système de construction hautement développé et perfectionné qui est utilisé depuis de nombreuses années dans d'autres pays, ainsi que dans la péninsule ibérique. Il s'agit de créer des structures à l'aide de profilés en métal formés à froid, obtenant ainsi un système très léger, ouvert, flexible, rationalisé et standardisé, ce qui se traduit par les avantages suivants :
Maison modulaire Canaries

Efficacité énergétique et durabilité

La capacité d'isolation élevée, profitant de la chambre intérieure des panneaux, permet une efficacité énergétique maximale, comparable aux bâtiments passifs à consommation zéro ou « PASSIVHAUS ». La structure métallique utilisée provient de + de 80 % de matériaux recyclés, ce qui, associé à l'utilisation de matériaux de revêtement et d'isolation appropriés, permet des constructions 100 % recyclables. La production de déchets est presque nulle, tout comme les besoins en eau et en gros équipements auxiliaires, avec une réduction considérable de l'utilisation des ressources dans leur construction.

Résistance au feu

L'acier est un matériau incombustible, il n'ajoute donc pas de charge supplémentaire à la maison. Il résiste aux températures élevées sans se briser ni se déformer, ce qui renforce la résistance de la structure et contribue à prévenir la propagation des incendies. Bien conçu, il résiste, selon les revêtements, les isolants et les éléments utilisés, aux temps exigés par les normes les plus strictes.

Comportement face aux tremblements de terre et aux vents forts

Les structures construites avec des ossatures en acier sont intrinsèquement résistantes aux tremblements de terre, car leur construction légère génère de très faibles contraintes de cisaillement à la base. Le concept de « squelette » offre une masse et une inertie réduites, tout en garantissant une grande résistance de chacun de ses composants, renforcée une fois la structure terminée grâce à ses performances globales. En cas de vents forts, il suffit d'inclure le contreventement et l'ancrage correspondants à la fondation aux extrémités des murs.

Composants, finitions et qualités

  • Revêtement Extérieur/Façades : Revêtement extérieur SATE d'une épaisseur minimale de 30 mm, fini avec du mortier flexible et du mortier acrylique coloré
  • Sols : Sols flottants stratifiés ou en porcelaine de qualité AC4.
  • Revêtement intérieur : Revêtements en porcelaine.
  • Peintures intérieures : Peinture écologique « BIOCALE KERAKOLL »
  • Sanitaires : Dalle sanitaire « ROCA », série GAP ou similaire, avec éléments suspendus et réservoirs intégrés.
  • Robinetterie : Robinets monocommande Grohe, Roca ou similaires avec systèmes de contrôle thermostatique dans les douches et les baignoires.
  • Éclairage : Éclairage LED intégré de type downlight de « RZB ».
Contactez-nous pour un devis personnalisé
Intérieur Maison Modulaire

Équipements disponibles en option

Cuisine équipée

Panneaux solaires

Système aérothermique avancé

Climatisation

Domotique

Système d’alarme

Piscine / Jacuzzi

Pergola extérieure

Barbecue et espace de loisirs

Design intérieur / décoration

Nos terrains à vendre à Ténérife pour construire votre maison modulaire


Appelez-nous
pour plus d'infos